纸上谈兵是不准确的,风水师要到现场亲自调查周围环境,测量山向度数!
如果你想在纸上交谈,你必须提供详细的信息:房子准确地坐在山上吗?房子完工了吗?还是在建造?新房子?二手房子?你住过吗?周围的环境怎么样?四个角落里有什么?北面的古黄河是直流吗?包围?反弓?嘴唇?建筑物、结构、植物、水、岩石的距离、高度、大小?形式的好坏程度?地形的起伏状态?
即使你能描述出来!也不一定是风水师眼中的物象!
抛开以上内容,和你纸上谈兵!不做定论!仅供参考!!!
你提供的图片应该是上北下南,以南北为例。风水流派多,理论不同,讨论结果不同,需要综合判断!
与大家分析现在常用的几派:
一、形式派:一、形式派:
1、入口门与浴室门相冲,会有口舌是非、诉讼、恶棍、诽谤和陷害,以及肝、胆、喉疾病。解决方法:根据两者之间的空间大小,选择窗帘、珠帘、屏幕、阴影墙、植物、家具等。
2、门外的情况如何?对着什么?
3、窗户外面有什么?
二、八卦派:
1、这种户型缺少“坤”和“根”两卦,不利于老母亲和小儿子,以及腹部、脾胃和手部疾病。解决方法:入口门、大厅面积、南墙,用“黑”色装饰,以弥补坤卦的缺失;研究装饰的颜色主要是白色的,弥补了根卦的不足。
2、厨房在乾,火克金,对男主人不利,影响事业发展,会有呼吸系统疾病。解决方法:厨房装修颜色以棕色和咖啡色为主。
3、浴室压在震方上,对男主人和长子不利。解决方法:浴室的装饰颜色主要是白色和绿色。
三、八宅派:
1、主人命卦:1974年4月,男人命卦为“根”,女人命卦为“兑”,性别未注明者,为男人,命卦五行为“土”,属西四命;
2、门的方向:在兑方,五行属金,属西四门;
3、楼层:四层为金
4、从入口门配楼层看:金金相助,为“吉”。

西户风水布局
5、用命卦配楼层看:为金土相生,为“吉”。
6、以命卦配门位看:为土生金,相生为“吉”。
7、以主人命卦配游年看八方:大游年歌:“艮六绝祸生延天五”;入口遇到“延年益寿”的吉星,主夫妻和睦,人丁兴旺,多寿;厨房遇到“天医”的吉星,主身体健康,财富旺盛;书房是“伏位”,安全,小福;最大的吉星“生气”在坤位,缺失!卫生间压在凶星“六邪”上是吉祥的;东南卧室遇到“绝命”凶星,最凶星,官灾人祸,死亡多病;正南卧室遇到“祸”凶星,官方诉讼疾病,孤独贫穷;客厅遇到“五鬼”凶星,无事惹麻烦,官事口舌,癌症车祸,火灾不服从。
8、总的来说,吉凶参半,但不用担心,风水界公认八宅派是“多有不验”。
四、玄空飞星派:
1、入口门:有利于事业发展,有利于文艺文化产业,有利于文职、文官等行业也会有突出的地位,遇流年星“二八”临门,为中年发横财。
2、厨房:不好,会有早逝、严重疾病,或退款,或夫妻关系有问题,最好的情况是夫妻拿着离婚证明还住在一起。解决方案:厨房用米色、金色装饰,炉灶附近有黄铜制品。
3、客厅、书房:退款,赚钱但不能保持,总是把钱送出去。解决方案:装饰颜色主要是棕色、咖啡色,颜色的深度取决于他们自己的喜好。
4、卫生间:压在凶方,吉。
5、东南卧室:如果夫妻生活,会有情感问题,如果单独生活,会导致头痛、疯狂、肝胆、呼吸系统疾病,解决方案:用红紫色装饰。
6、正南卧室:如果南阳台外有水,水外有山,或者有路,路外有楼,水,路环绕,山,楼形吉祥美观,高度不遮挡阳光,那就是“丁财两旺之家”。
凶的可以化解,吉的可以催旺。以上讨论仅供参考!
随着人们理解水平的提高,风水在我们的生活中变得越来越重要,大大小小使用风水,风水是一门广泛而深刻的知识,现在有数千年的历史和文化没有被淘汰,也就是说,证明风水有自己的意义,已经成为人们选择住宅的关键内容之一。如何看待民宅风水?如何看待民宅风水?一:农村风水阳宅分析1:农村风水阳宅分析1:、不管是什么宅,是阳宅,还是阴宅。旁边有山有水很重要。靠山吃山,靠水吃水。正是此意。2、阳宅最好是方正。这就是所谓的天圆地方。另外,阳宅不能缺角,房子要注意前窄后宽。3、阳宅忌阴气。阳宅是活人居住的地方,如果有阴气,自己的身体就会出现疾病问题。阳宅在什么情况下会有阴气?比如这样的房子会让人觉得凶,很久没人打扫了。此外,阳宅曾经发生过血腥的灾难,房子位于山村的老林和黑暗的深处。阳宅附近有墓地。这样的房子是传说中阴气十足的阳宅。4、开门处不宜有水路。电柱、烟筒、桥箭、屋角、大树、庙宇等周围不能出现高起的东西。庙宇是化解人间敌意的地方,所以旁边有庙宇是不利的。阳宅前不宜有大树,阻碍阳气进入房屋,也不易驱除阴气。5、电灯柱、电线杆或停车收费表直立在住宅门的中央或窗口,称为对堂煞,又称对堂煞「穿心煞」。凡阳宅犯「穿心煞」。住在这个房子里很凶,财运会破财,事业上容易惹小人,健康上有疾病,和父母、妻子、孩子分开生死。6、屋小门大。如果阳宅太小,如果门开得太大,天地的气场很容易泄露。这样不利于聚财。以上关于住宅风水的知识,这里个人建议你家里的鱼缸,建议放在家里的西南或北方,如果这两个方向不方便放,也可以放在西方。大概就是这些。以上内容可供参考。我很高兴为你回答。我希望这对你有帮助。如果你觉得很棒,竖起大拇指。祝你生活愉快。
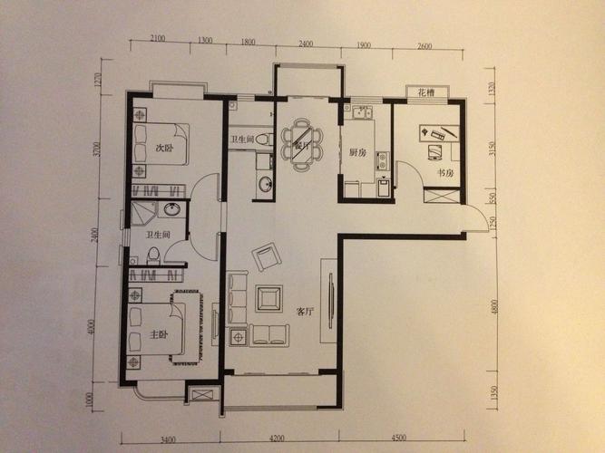
家里的房子不一定很复杂,简单的风水也很受当前购房者的青睐,所以从这张房屋类型图上看房子的风水,有什么缺点?
首先,从房子的外观来看,从这个房屋类型图可以看出,房子的结构是四个方向的缺角,这个结构本身并不是一个好的迹象,你可以咨询风水知识网络在线大师询问解决方案。在解决了外部结构的邪恶之后,让我们来看看房子的内部结构。
从门开始,门没有门廊、屏幕和其他可以阻挡的物体,这样人们就可以直接看到房子的整体结构,这种模式不是很幸运,只要可以阻挡的物体放在门的位置放置财富暴露。
厕所和厨房,分别属于水和火,水和火不相容,现在这两个房间相邻,容易引起碰撞,布局不太好,如果空间位置不足,如果不适用,最好关门,眼睛不干净。
卧室连接不相对,这在风水上是无障碍的,只要不妨碍风水的格局,这样的布局是没有问题的。