cad平方米符号怎么打m2 CAD常用特殊符号输入方法教学
admin
2023-09-22 06:05:06

目标:

CAD尺寸标注里的特殊符号怎么打出来?

在标注里打出平方

操作:

①先正常标注出来

CAD尺寸标注里的特殊符号怎么打出来?

②输入“ED”命令

CAD尺寸标注里的特殊符号怎么打出来?

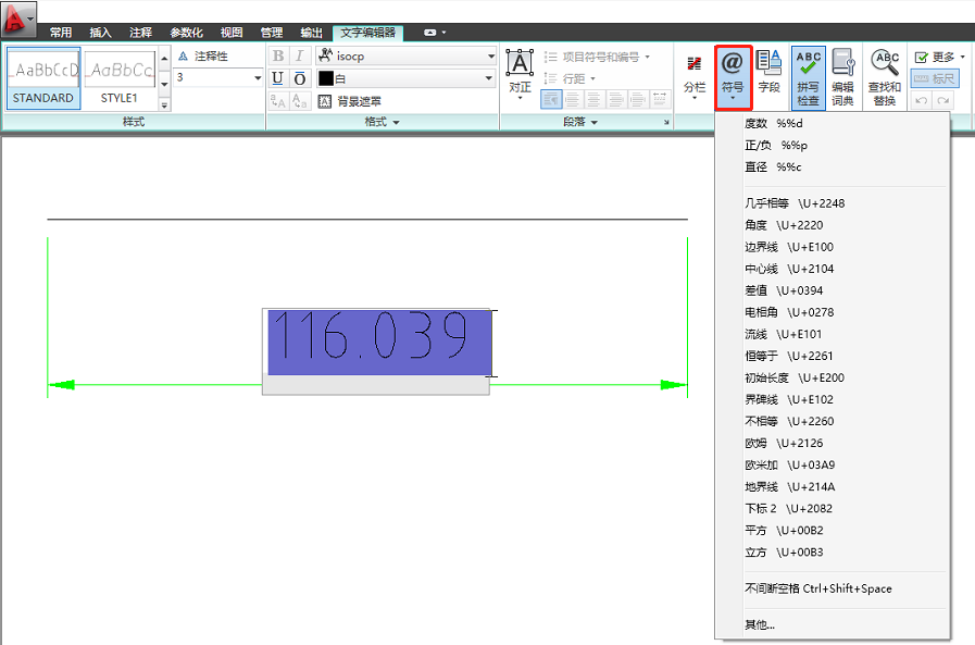
③在@的下拉列表里选择平方等字符

相关内容

热门资讯

苗族的传统节日 贵州苗族节日有... 【岜沙苗族芦笙节】岜沙,苗语叫“分送”,距从江县城7.5公里,是世界上最崇拜树木并以树为神的枪手部落...
长白山自助游攻略 吉林长白山游... 昨天介绍了西坡的景点详细请看链接:一个人的旅行,据说能看到长白山天池全凭运气,您的运气如何?今日介绍...
猫咪吃了塑料袋怎么办 猫咪误食... 你知道吗?塑料袋放久了会长猫哦!要说猫咪对塑料袋的喜爱程度完完全全可以媲美纸箱家里只要一有塑料袋的响...
应用未安装解决办法 平板应用未... ---IT小技术,每天Get一个小技能!一、前言描述苹果IPad2居然不能安装怎么办?与此IPad不...
阿西吧是什么意思 阿西吧相当于... 即使你没有受到过任何外语培训,你也懂四国语言。汉语:你好英语:Shit韩语:阿西吧(아,씨발! )日...