工程草图怎么画(草图绘制与工程图的介绍区别)
admin
2022-10-29 12:00:53

当在 SOLIDWORKS 中开发模型时,您绘制几何实体(如矩形和圆)作为实体特征(如拉伸、旋转、及切除)的基础。 您可粗略绘制实体,然后准确标注尺寸。

从草图到模型一直到工程图的总过程如下:

第1步、在零件文件中,打开一草图并粗略绘制一实体,如矩形。

  solidworks2020草图绘制与工程图的介绍-1 

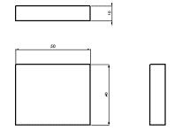
第2步、准确给草图标注尺寸。 

solidworks2020草图绘制与工程图的介绍-2 

第3步、拉伸草图以形成一 3D 实体基体特征,此将成为零件的基础。

  solidworks2020草图绘制与工程图的介绍-3 

第4步、打开一新工程图,插入零件为 2D 标准三视图,然后插入尺寸。 

solidworks2020草图绘制与工程图的介绍-4



以上就是solidworks2020草图绘制与工程图的介绍,希望大家喜欢,请继续关注办公百科网。

相关内容

热门资讯

苗族的传统节日 贵州苗族节日有... 【岜沙苗族芦笙节】岜沙,苗语叫“分送”,距从江县城7.5公里,是世界上最崇拜树木并以树为神的枪手部落...
北京的名胜古迹 北京最著名的景... 北京从元代开始,逐渐走上帝国首都的道路,先是成为大辽朝五大首都之一的南京城,随着金灭辽,金代从海陵王...
应用未安装解决办法 平板应用未... ---IT小技术,每天Get一个小技能!一、前言描述苹果IPad2居然不能安装怎么办?与此IPad不...
脚上的穴位图 脚面经络图对应的... 人体穴位作用图解大全更清晰直观的标注了各个人体穴位的作用,包括头部穴位图、胸部穴位图、背部穴位图、胳...
长白山自助游攻略 吉林长白山游... 昨天介绍了西坡的景点详细请看链接:一个人的旅行,据说能看到长白山天池全凭运气,您的运气如何?今日介绍...
阿西吧是什么意思 阿西吧相当于... 即使你没有受到过任何外语培训,你也懂四国语言。汉语:你好英语:Shit韩语:阿西吧(아,씨발! )日...
demo什么意思 demo版本... 618快到了,各位的小金库大概也在准备开闸放水了吧。没有小金库的,也该向老婆撒娇卖萌服个软了,一切只...
猫咪吃了塑料袋怎么办 猫咪误食... 你知道吗?塑料袋放久了会长猫哦!要说猫咪对塑料袋的喜爱程度完完全全可以媲美纸箱家里只要一有塑料袋的响...
世界上最漂亮的人 世界上最漂亮... 此前在某网上,选出了全球265万颜值姣好的女性。从这些数量庞大的女性群体中,人们投票选出了心目中最美...
苗族的传统节日 贵州苗族节日有... 【岜沙苗族芦笙节】岜沙,苗语叫“分送”,距从江县城7.5公里,是世界上最崇拜树木并以树为神的枪手部落...
北京的名胜古迹 北京最著名的景... 北京从元代开始,逐渐走上帝国首都的道路,先是成为大辽朝五大首都之一的南京城,随着金灭辽,金代从海陵王...
应用未安装解决办法 平板应用未... ---IT小技术,每天Get一个小技能!一、前言描述苹果IPad2居然不能安装怎么办?与此IPad不...
脚上的穴位图 脚面经络图对应的... 人体穴位作用图解大全更清晰直观的标注了各个人体穴位的作用,包括头部穴位图、胸部穴位图、背部穴位图、胳...
长白山自助游攻略 吉林长白山游... 昨天介绍了西坡的景点详细请看链接:一个人的旅行,据说能看到长白山天池全凭运气,您的运气如何?今日介绍...
阿西吧是什么意思 阿西吧相当于... 即使你没有受到过任何外语培训,你也懂四国语言。汉语:你好英语:Shit韩语:阿西吧(아,씨발! )日...
世界上最漂亮的人 世界上最漂亮... 此前在某网上,选出了全球265万颜值姣好的女性。从这些数量庞大的女性群体中,人们投票选出了心目中最美...
猫咪吃了塑料袋怎么办 猫咪误食... 你知道吗?塑料袋放久了会长猫哦!要说猫咪对塑料袋的喜爱程度完完全全可以媲美纸箱家里只要一有塑料袋的响...
demo什么意思 demo版本... 618快到了,各位的小金库大概也在准备开闸放水了吧。没有小金库的,也该向老婆撒娇卖萌服个软了,一切只...